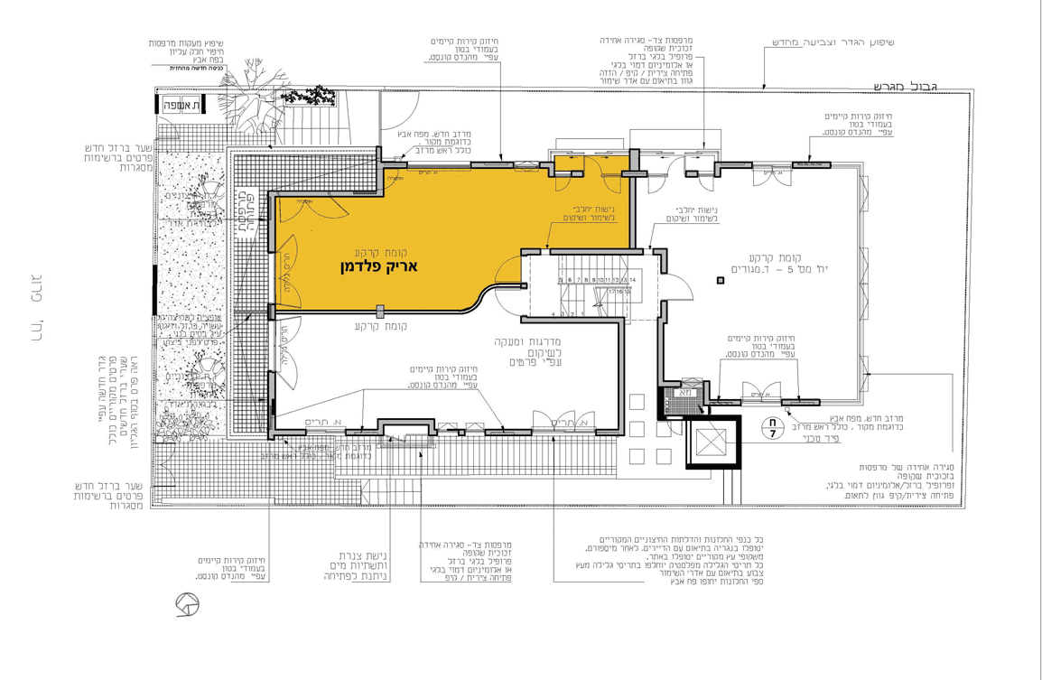
Unit6