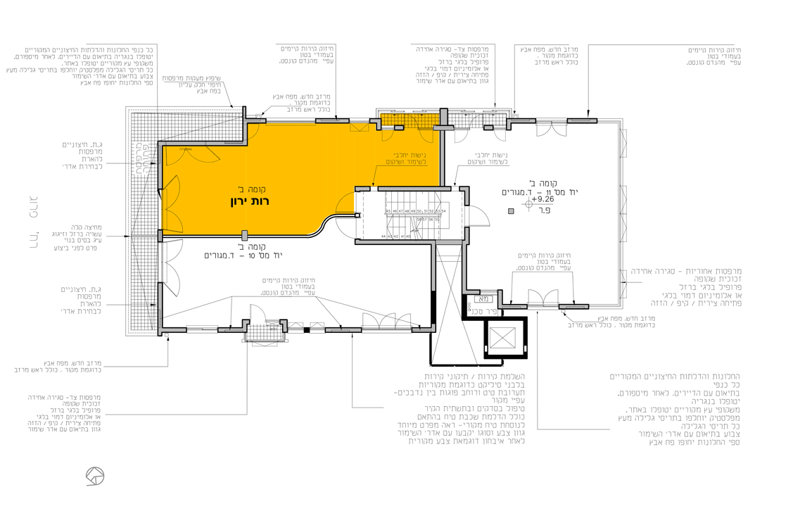
Unit12