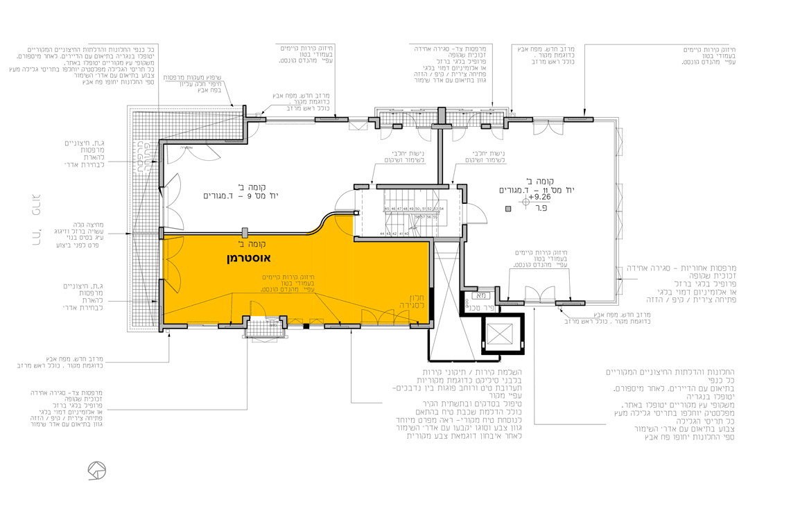
Unit11