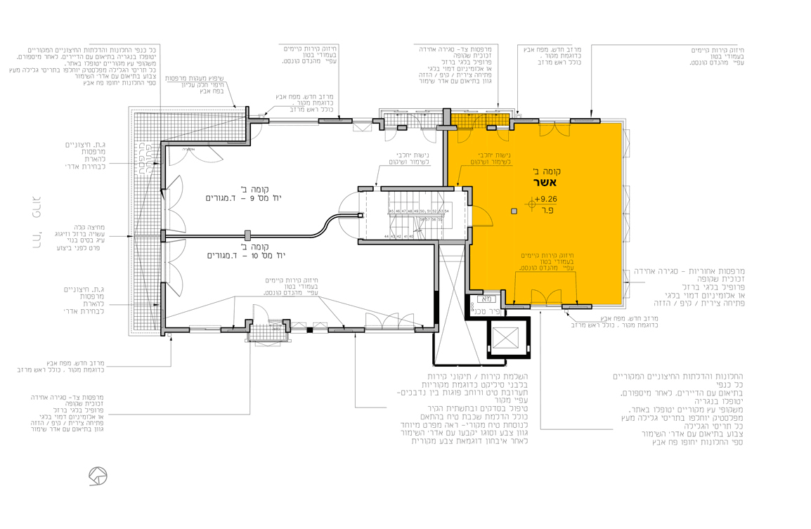
Unit10